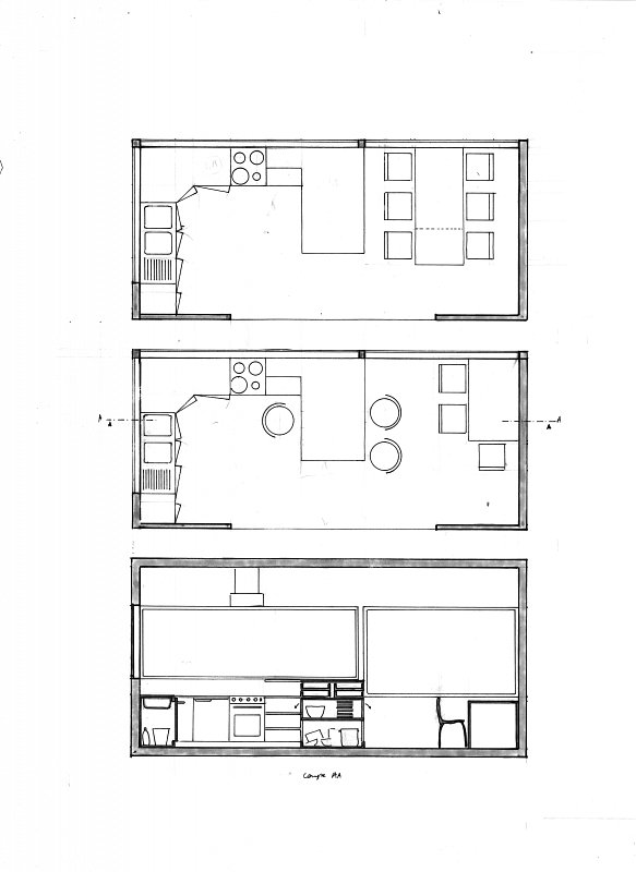
Dessin de cuisine   Dessin d'usage de cuisine réalisé avant le projet de maison-pliage.
Hadrien Hartgers  /  Maison pliage  /  9 of 10       Show captionHide caption